Popis:
• Vhodné pre inštaláciu v jednej rovine s podlahou
• Spaľovacia komora čierna alebo biela žiaruvzdorná
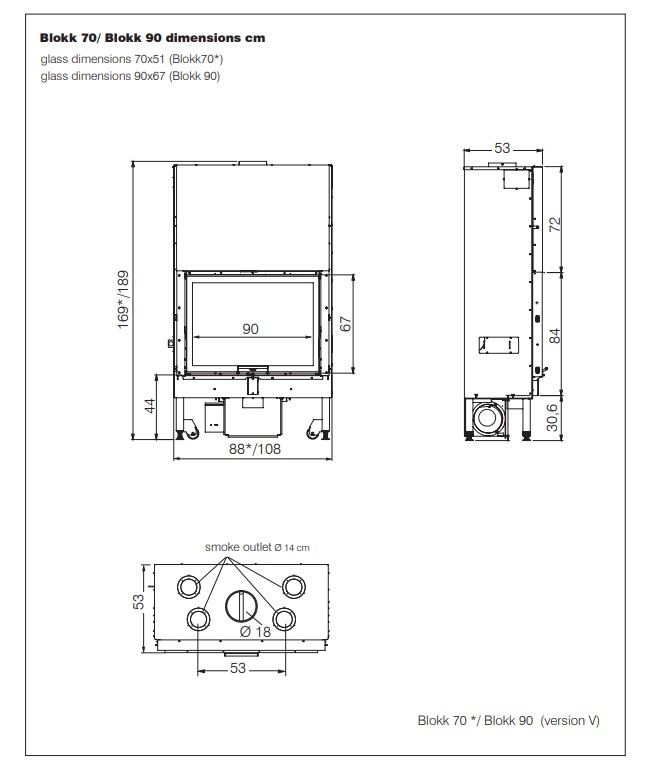
• Odvod dymu ø 18 cm horný, samica
• Otváranie dvierok naklápaním a nahor a nadol na čistenie skla
• Výstupy pre odvádzanie horúceho vzduchu 2 ks
• Páka nastavenia spaľovania
• Systém dodatočného spaľovania
• Rozvod horúceho vzduchu až do 4 susediacich miestností (voliteľná súprava)
• Odnímateľná rukoväť
• 4 výškovo nastaviteľné nohy
• 4 otočné kolieska uľahčujúce manipuláciu pri montáži
Technické parametre:
Rozmery (V x Š x H): 1350 x 930 x 530 mm
Nominálny tepelný výkon: 14,3 kW
Energetická účinnosť: 81,4 %
Spotreba paliva: 3,8 kg/h
Priemer dymovodu: DN 180 mm
Hmotnosť: 294 kg
Vykurovaný objem: 375 m3
Energetická trieda: A+
Externý prívod: áno
Dostupné v nasledujúcich verziách:
WINDO 70 N biele ohnisko 4094 - 10% = 3684,60 €
WINDO 70 N čierne ohnisko 4418 - 10% = 3976,20 €
Príslušenstvo za príplatok:
ČIERNY RÁMIK DVIEROK 1110110 162 €
NOSNÝ RÁM 1110180 206 €
Na stiahnutie:
Technický list Energetický štítok Informačný list










Nový komentár